Pôle socio-culturel à Vilanova Del Cami

Réhabilitation lourde en site occupé

Lauréat concours

FR / ES

Maître d’ouvrage Mairie de Vilanova Del Cami / Programme 4 classes, médiathèque, restaurant, salle polyvalente et gymnase, salle de spectacle 150 places, salle d’activités, bureaux associatifs, annexes / Lieu Vilanova Del Cami, Barcelone / Surface 2.451 m² / Coût des travaux 3.1 M euros HT / Calendrier concours 2008 / projet 2008-2012 / 1ère phase chantier livrée en 2013 / 2ème phase chantier livrée en 2016 / 3ème phase chantier prévue 2019 / Développement durable HQE / Architecte mandataire onze04 / Structure Upuntsis SL / Fluides Ecoenginy SLL / économie onze04 Architectes / Equipe Onze04 2008 – Gustavo Silva-Nicoletti , Marina Tapia, Joan Sague, Joan Travé, Olga Serra, Vincente Ceballos / 2012 – Gustavo Silva-Nicoletti, Marc Bertran i Sastre, Margaux-Anne Bouvier, Mathias Gerhard, Simon Rousseau, Felix Ratez / Suivi de chantier Marc Beltran

Le transfert du Centre d’Attention Primaire de Vilanova Del Cami en périphérie du bourg a laissé un immeuble vide en plein cœur de ville. Situé dans un lieu constituant son principal espace public (qui comprend la place centrale, l’église, le marché couvert), ce bâtiment doit être transformé en centre de jour pour personnes âgées et inclure en son sein une salle polyvalente de type auditorium afin de développer l’offre d’espaces culturels de la ville.

Le projet veut potentialiser le centre urbain à travers la création d’un bâtiment capable de diluer les limites entre l’immeuble et la place centrale de la ville.

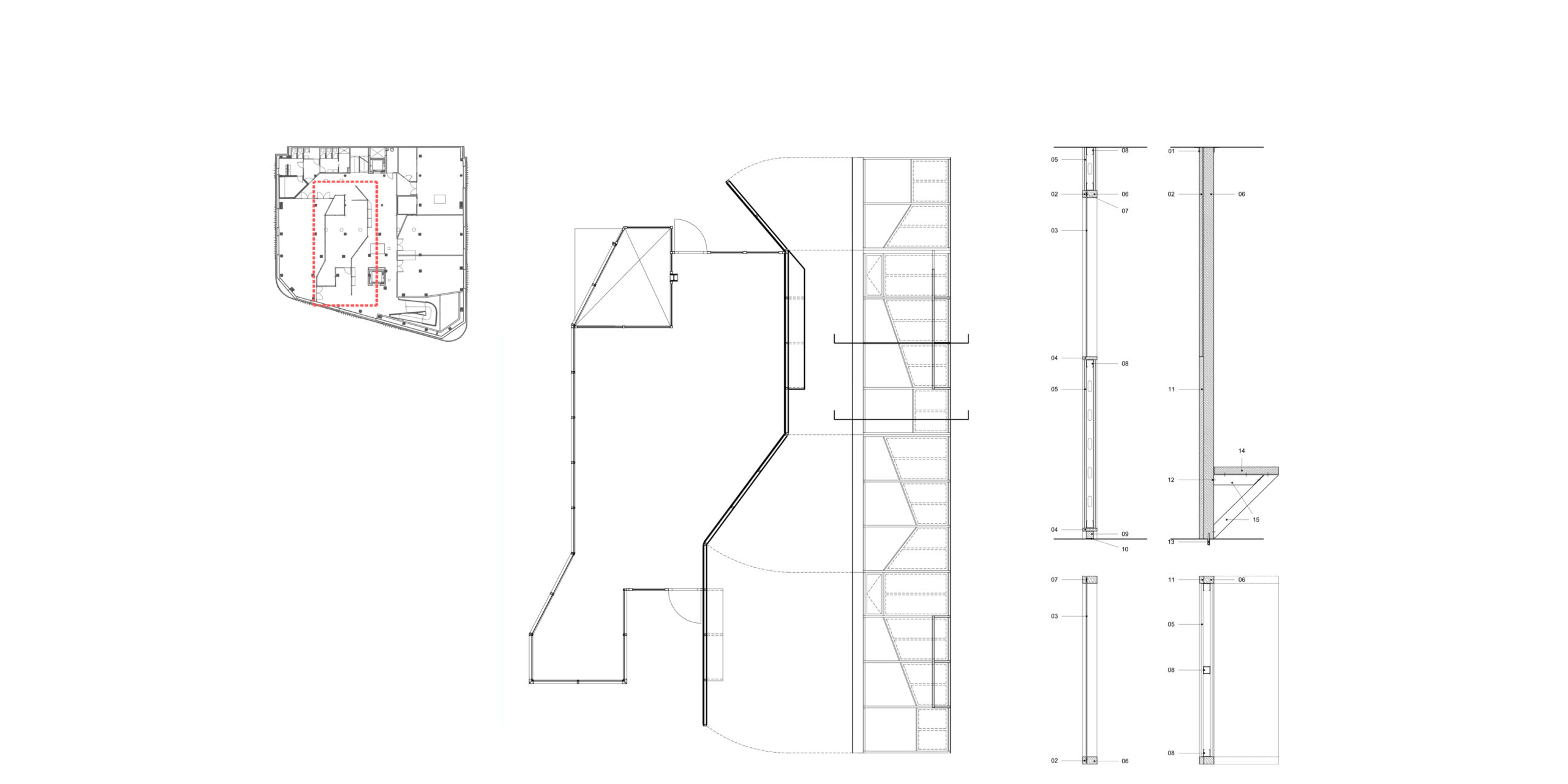
La salle polyvalente de type auditorium est située au rez-de-chaussée : au quotidien, elle sert de salon d’activités pour le centre de jour. De manière occasionnelle, cette salle peut être incorporée à la place publique, comme salle de danse, de concert, comme lieu d’exposition, pour des conférences… Ou pour n’importe quel évènement culturel local requérant un espace couvert.

La multiplicité de ces usages est rendue possible grâce aux trois grands accès dotés d’un simple système de camouflage de portes qui les rend « invisibles » lorsqu’ils sont ouverts.
Le reste du programme se situe au premier étage et en toiture terrasse : salle de gymnastique, vestiaires, ateliers, bibliothèque, salon de coiffure…

Ces deux niveaux peuvent fonctionnés de manière autonome : leur accès est indépendant, ce qui garantie la pluralité et la simultanéité des activités pratiquées.


 

FR / ES

Cliente: Ayuntamiento de Vilanova Del Cami / Programa reforma integral de edifcio existente y cambio de uso / Lugar Vilanova del Camí, Barcelona / Superfcie edificio 2.451 m2 / Presupuesto 3 .100.000 € / Calendario Concurso: 2008 / 1er Proyecto: 2009/ modificacion del Proyecto: 2012 /1a Fase Construcción: 2013/ 2a Fase Construcción: 2015- 2016/ 3a Fase Construcción: previsto 2019 / Equipo proyecto 2008 Gustavo Silva-Nicoletti y Marina Tapia con Joan Sague, Joan Travé, Olga Serra y Vincent Ceballos / Equipo proyecto 2012 Gustavo Silva-Nicoletti y Marc Bertran i Sastre con Margaux-Anne Bouvier, Mathias Gerhard, Simon Rousseau y Felix Ratez / Dirección de obra Marc Bertran i Sastre / Aparejador Jordi Carbonell / Estructura Toni Casas / Instalaciones Ecoenginy / Fotos José Hevia

El traslado del Centro de Atención Primaria a la periferia de la ciudad deja un edificio semivacío en el hipercentro de Vilanova, a los pies del espacio peatonal que aglutina la iglesia, el mercado y un generosa plaza pública.

En su lugar, el ayuntamiento propone transformar el edificio en Centro de día para personas mayores con la particularidad de incluir una Sala Polivalente de medio formato, que complementaria la oferta de edificios públicos culturales con que cuenta la ciudad.

El proyecto propone la creación de una planta baja abierta y permeable donde se colocará el espacio mas público del edificio : la sala polivalente, que podrá acoger actividades culturales variadas a escala de la ciudad, como representaciones, exposiciones, conferencias, bailes…

Tres accesos generosos, cuyas puertas pueden desaparecer cambiando de posición o deslizándose detrás de la tabiquería, permiten desdibujar los limites del edificio con el espacio público exterior.

La gran sala se convierte entonces en un anexo cubierto de la plaza, una suerte de foyer de ese gran espacio público.

En planta alta, el edificio se cierra para acoger sus usos más privados: gimnasio, peluquería, vestuarios, aulas, taller e informática… y funciona con total independencia al tener un acceso propio separado de la Sala Polivalente. De este modo se garantiza la pluralidad y simultaneidad de actividades entre los dos niveles.

La fachada refleja esta dualidad a través de una planta baja totalmente transparente que contrasta con el hermetismo de la planta superior.

En 2009, la falta de una parte importante de la financiación detuvo el proyecto durante 3 años. En coordinación con el Ayuntamiento, modificamos el proyecto para optimizar los costes de construcción y para ejecutarlo en 3 fases sucesivas (que corresponderían con subvenciones a las que podía optar el Ayuntamiento).

A lo largo de estos años, el proyecto ha evolucionado en paralelo a la mirada y los cambios en el despacho, y a la substitución de políticos y técnicos en el Ayuntamiento. El resultado de esta dinámica es un edificio despojado paulatinamente de aquello que era prescindible en el planteamiento y en la forma original.

Contrariamente a lo que hubiéramos podíamos prever, esta reelaboracion constante del proyecto lo acerca cada vez más a los rasgos programáticos y perceptivos del primero…del proyecto del concurso ganado.