Cabinet d’ophtalmologistes à Nantes

Aménagement d’un local commercial en cabinet d’ophtalmologie

Sélectionné ADC AWARD 2020

FR / ES

Maître d’ouvrage Privé / Programme cabinet de consultation d’ophtalmologie, accueil-secrétariat, espace central d’attente, 5 unités de consultation (avec bureau ophtalmologue et bureau orthoptiste), sanitaires, salle de pause, unité supplémentaire indépendante / Lieu Nantes, Pays de la Loire, France / Surface 400 m² SDP / Coût des travaux 422.000 € HT / Calendrier projet 2018 – livré 2019 / Architecte mandataire onze04 / Équipe projet onze04 Gustavo SILVA-NICOLETTI, Margaux-Anne BOUVIER, Anne BOURBON, Wan Ting LO / Suivi de chantier Gustavo SILVA-NICOLETTI, Cloë CAZADE / Economiste 107 ECO / OPC CT ATLANTIQUE / Photographies François DANTART

Le local pour ce cabinet d’ophtalmologues se situe sur l’île de Nantes dans un immeuble neuf de logements et bureaux. Pour mettre en avant cette dualité, le bâtiment présente deux écritures architecturales très différentes : les façades des bureaux sont très largement vitrées et rythmées par des lames verticales ; celles des logements sont en béton blanc et percées d’une multitude d’ouvertures aux proportions carrées. Selon le point de vue, on pourrait croire qu’il s’agit de deux bâtiments distincts, qui n’auraient pas fait partie de la même opération.

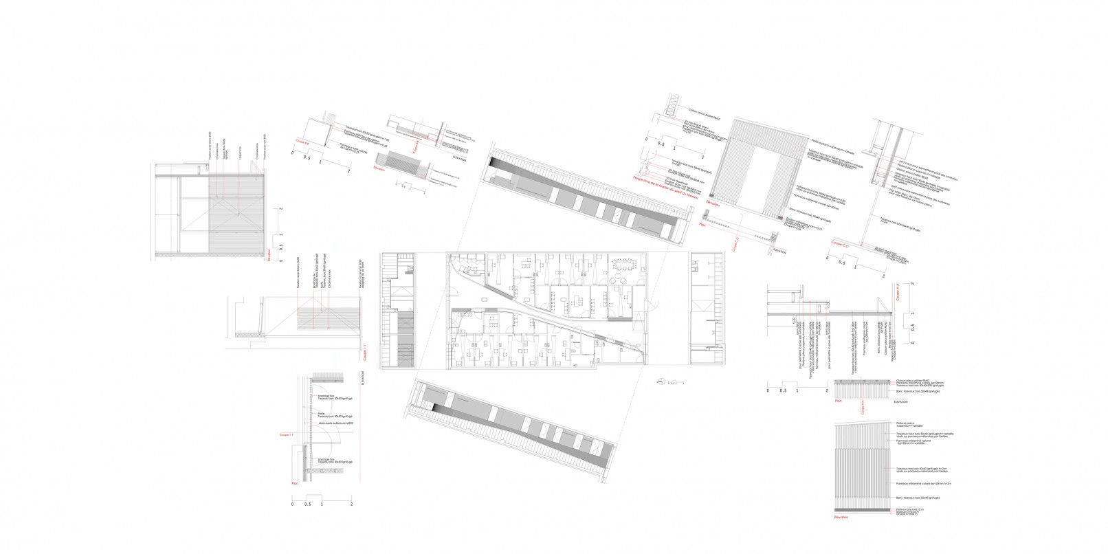
Le local se situe à la jonction de ces deux entités. Il s’étend sur toute l’épaisseur du bâtiment et ses proportions sont très étirées (15,50m de largeur pour 26,40m de profondeur). La façade principale sur le boulevard est entièrement vitrée, mais en revanche, la façade Sud dispose de peu de linéaires de vitrage. La porte principale d’accès du local est déjà déterminée en amont par le projet du bâtiment et elle est positionnée sur le coté opposé des ouvertures de la façade Sud. De ce fait, une distribution traditionnelle des locaux de consultation en épine ne permettrait pas d’avoir de la lumière naturelle aux deux extrémités de la circulation centrale.

Le programme est composé d’un espace d’accueil et de secrétariat, de cinq unités de consultation autonomes (bureau d’ophtalmologue, bureau d’orthoptiste et espace d’attente dédié), d’espaces communs d’attente et d’une unité de consultation supplémentaire qui doit pouvoir fonctionner de façon indépendante.

Le projet propose de générer un espace central en diagonale qui relie les deux façades, et dont l’objectif principal est de permettre la meilleure diffusion de la lumière possible. Cette diagonale accueille l’accueil et le secrétariat, les espaces communs d’attente et les accès aux sas qui mènent aux unités de consultation.

Afin de renforcer l’effet de cette diagonale et pour accentuer la perception de la lumière naturelle à ses extrémités, les murs se resserrent au milieu de l’espace central, laissant un passage de seulement 1,50m. Les lieux communs d’attente sont positionnés dans les espaces qui se dilatent à proximité des façades.

Les plafonds répètent ce schéma, : ils présentent une hauteur de 3,40 m aux extrémités, et descendent jusqu’à 2,40 m sur la partie centrale.

Les murs de cet espace central se parent de tasseaux de bois peints en blanc et posés selon un rythme régulier sur un fond bleu. Il s’agit de générer un effet cinétique qui apporte une vibration soutenue lorsque l’on se déplace, le but étant de raccourcir la perception que l’on a du couloir tout en renforçant les vues transversales.

Ce bardage très marqué permet également de générer une unité de lecture depuis l’extérieur, face aux écritures duales du bâtiment existant. Cet aménagement intérieur unifie les espaces, offre une continuité visuelle sur la profondeur totale du local, et confère au cabinet d’ophtalmologie toute son identité.


FR / ES

Cliente Privado / Programa Clinica oftalmogica / Ubicación Nantes, Francia / Superficie 400 m² / Coste 422.000 € HT / Calendario proyecto 2018 – obra 2019 / Arquitectos onze04 / Equipo de proyecto onze04 Gustavo SILVA-NICOLETTI, Margaux-Anne BOUVIER, Anne BOURBON, Wan Ting LO / Seguimiento de obra  Gustavo SILVA-NICOLETTI , Cloé CAZADE / Economista 107 ECO / OPC CT Atlantique  / Fotografias François DANTART