Collège Tréfaven à Lorient

Collège 24 divisions extensible à 26 divisions

Concours lauréat

FR / ES / EN

Maître d’ouvrage Conseil Départemental du Morbihan / Programme collège 650 élèves de 24 divisions extensible à 26 divisions, salle de sport, restauration et locaux techniques / Lieu Lorient, Bretagne, France / Surface 6.160 m² SDP / Coût des travaux 11 M euros HT / Calendrier concours 2018 – livré 2021 / Architecte mandataire onze04 / Architecte associé Valero Gadan  / Équipe projet onze04 Gustavo SILVA-NICOLETTI, Mathias GERHARDT, Cloé CAZADE, Margaux-Anne BOUVIER, Wan Ting LO, Romain LUCAS / Suivi de chantier Gustavo SILVA-NICOLETTI, Mathias GERHARDT, Cloé CAZADE / Paysage onze04 et Valero Gadan / Economiste ECB / BET Structure, Fluides et VRD Ingerop / BET Acoustique Avel /  BET Cuisine Conceptic Art / OPC Armor Economie / Photos François Dantart

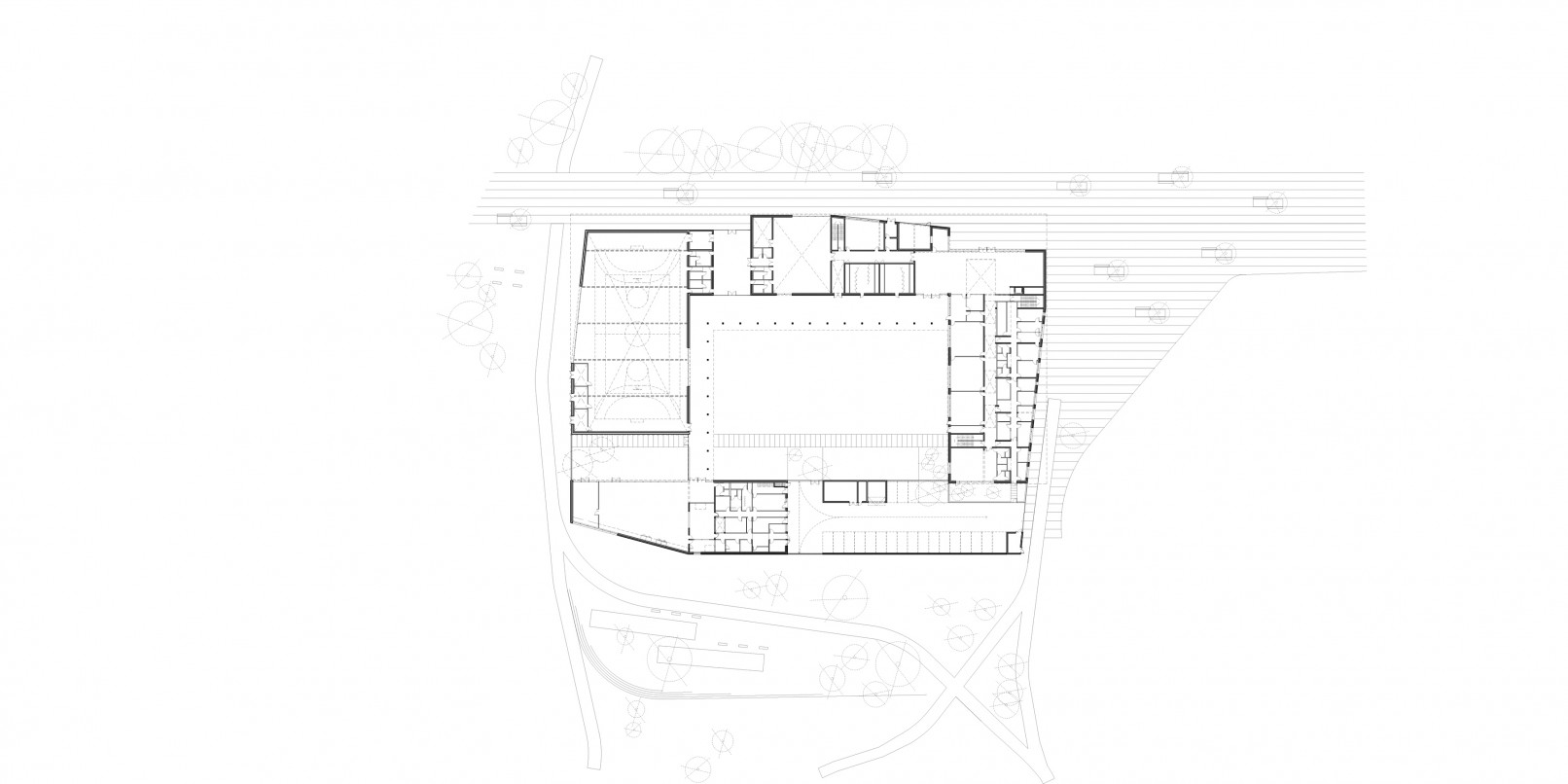
Le site du collège se situe dans le grand vide formé par les installations sportives du Stade de Tréfaven. Ce vide est un lieu de transition entre le quartier pavillonnaire à l’ouest, l’artère urbaine le long du Scorff à l’est, le quartier du centre ville Kerentrech au sud, ainsi que le quartier périphérique du Bois du Château au nord.

La parcelle se situe en retrait du boulevard, créant naturellement une grande place qui servira d’appel au nouveau collège. Notre proposition s’attache à dilater et prolonger cet espace public vers la zone pavillonnaire à travers une large rue piétonne, créant ainsi la connexion manquante est-ouest.

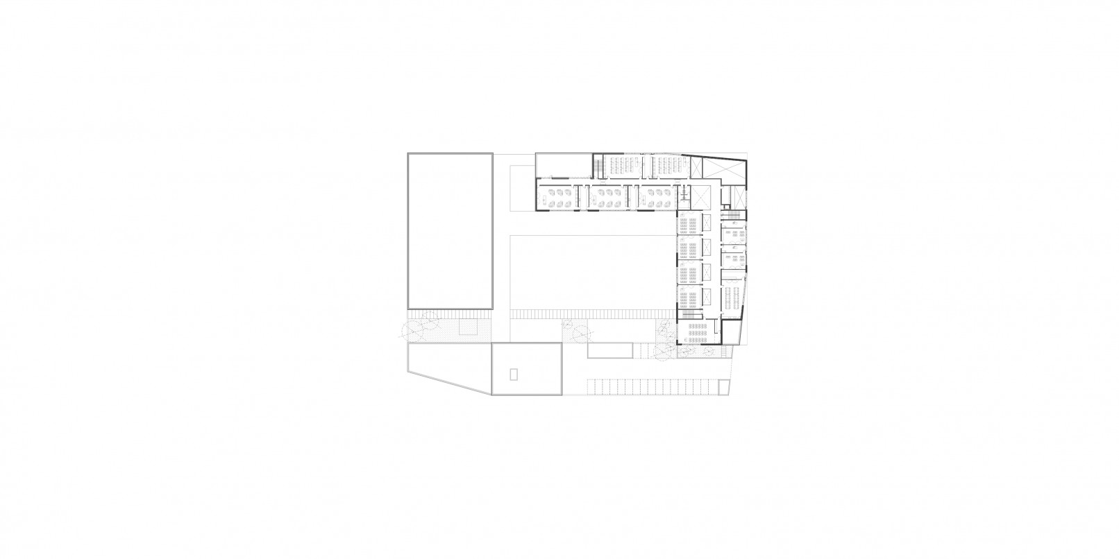
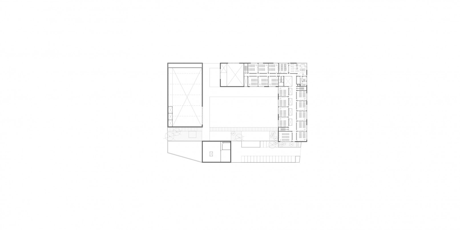
Le collège veut être un espace sanctuarisé et protégé de l’extérieur à l’image d’un cloître. Il s’agit d’un bâtiment à double peau, constitué d’une bande épaisse qui gère la mise à distance avec l’extérieur en se protégeant de tout contact direct en rez-de-chaussée tout en permettant des percées visuelles et paysagères. Aux étages, le bâtiment s’ouvre sur le calme du jardin, du parc et sur la vue vers le Scorff. De cette façon, le collège constitue un bâtiment à quatre façades, où chacune d’entre elle participe à structurer un paysage urbain.

Il est organisé en trois volumes aux fonctions distinctes :

Au Nord-Est : le bâtiment Enseignement et la salle polyvalente qui accompagnent la dilatation de la place vers la rue piétonne. Au Nord-Ouest : le gymnase qui protège la zone pavillonnaire de la vie inhérente d’un collège. Et au Sud-Ouest : la restauration qui vient refermer la cour de récréation et la protéger des vents dominants.

Les façades établissent un double dialogue avec l’environnement. La partie haute du bâtiment reflète subtilement les mouvements du ciel et ses nuances au cours de la journée à travers la mise en place d’un bardage métallique en aluminium.

La partie basse du socle s’anime avec le mouvement des piétons qui parcourt l’espace public.

Un travail de cinétisme réalisé sur des lames verticales en bois et colorées sur une face se révèle à mesure que l’on se déplace.

Afin de créer un nouveau pôle équipement à l’opposé de la grande place du collège, la Salle polyvalente et le Gymnase sont situés côté ouest. Cette double activité aux pôles opposés garantie le succès de cette nouvelle connexion et renforce celle entre le nord et le sud du site.


FR / ES / EN

Cliente Conseil Départemental du Morbihan/ Programa Collège 650 estudiantes de 24 divisiones extensible a 26 divisiones, con polideporivo, restauración y locales técnicos / Ubicación Lorient, Francia / Superficie  6.160 m² / Coste 11 M euros HT / Calendario Concurso 2018 – Obra 2019-2021 / Arquitectos onze04 / Arquitectos Asociados Valero Gadan / Equipo de proyecto onze04 proyecto ejecutivo : Gustavo SILVA-NICOLETTI con Mathias GERHARDT, Cloé CAZADE / equipo de concurso : Gustavo SILVA-NICOLETTI con Mathias GERHARDT,  Margaux-Anne BOUVIER, Wan Ting LO, Romain LUCAS/ Seguimiento de Obra Mathias GERHARDT, Cloé CAZADE / Paisajista onze04 y Valero Gadan / Economista ECB / Estructura e instalaciones Ingerop / Ingeniero acústico Avel / Ingeniero cocina Conceptic Art /  PHOTOS François Dantart

El colegio está situado en el gran vacío formado por las instalaciones deportivas del Stade de Tréfaven, en Lorient. Se trata de una zona de transición entre un barrio residencial al Oeste, la arteria urbana que linda con el río Scorff al Este, el centro de la cuidad al Sur y el barrio  suburbano Bois du Château al Norte.

La parcela se retira del bulevar, creando de forma natural una gran plaza que servirá de antesala al nuevo colegio. Nuestra propuesta amplia y extiende este espacio público hacia la zona residencial situada al Oeste a través de la creación de un paseo peatonal que permite la conexión entre el bulevar y las viviendas unifamiliares de dicho barrio.

Los 3 edificios que forman el colegio se articulan alrededor del patio generando una suerte de claustro que limita el contacto directo con el exterior en la planta baja, pero permite al mismo tiempo aperturas visuales y paisajísticas.

En las plantas superiores, el edificio se abre a la calma del jardín, al parque y a la vista hacia el río Scorff.

Cada una de las cuatro fachadas contribuye a estructurar un paisaje urbano adaptado a las cuatro escalas existentes.

EL colegio está organizado en tres volúmenes con funciones distintas:

Al Noreste: el edificio de Educación y la sala polivalente que acompañan la ampliación de la plaza hacia la calle peatonal. Al Noroeste: el gimnasio, que protege la zona residencial de la vida inherente a un colegio. Y al Suroeste: el restaurante que cierra el patio y lo protege de los vientos dominantes, al mismo tiempo que reduce la escala del conjunto hacia el barrio residencial.

Las fachadas establecen un doble diálogo con el entorno. La parte superior del edificio refleja sutilmente los movimientos del cielo y sus matices durante el día mediante la instalación de un revestimiento metálico de aluminio.

La parte inferior cobra vida con el movimiento de los peatones en el espacio público.

Un trabajo cinético realizado sobre listones de madera verticales, coloreados por un lado, se descubre a medida que se avanza.

La Sala Polivalente y el Gimnasio, de uso para los vecinos y asociaciones vecinales fuera de los horarios escolares, se sitúan en el lado opuesto de la plaza y del acceso principal al equipamiento. Esta doble actividad en polos opuestos refuerza la conexión transversal entre barrios y entre el Norte y el Sur del recinto.


FR / ES / EN

Client Conseil Départemental du Morbihan / Program Middle school 650 students (24 classrooms, gymnasium, catering and technical facilities / Location Lorient, France / Area  6.160 m² / Cost 11 M euros HT / Schedule Competition 2018 – Worksite 2019-2021 / Lead architects onze04 / Associated architects Valero Gadan / onze04 Team  projetct and worksite : Gustavo SILVA-NICOLETTI, Mathias GERHARDT, Cloé CAZADE / Competition team : Mathias GERHARDT,  Margaux-Anne BOUVIER, Wan Ting LO, Romain LUCAS / Landscape project onze04 and Valero Gadan / consulting engineers ECB,  Ingerop, Avel, Conceptic Art /  PHOTOS François Dantart

The college is located in a transitional area between a suburban neighborhood and the city center of Lorient. It is a sanctuarized space preserved from the outside like a cloister. His double skin handles the distance with the outside by protecting itself from any direct contact while also allowing visual and landscape breakthroughs. On the upper floors, the building opens onto the calm of the garden, the park and the view towards the nearby river. In that way, the college constitutes a building with four facades, where each of them participates in structuring an urban landscape.